Исток

2 480 000 ₽
Модульные дома
минимальная стоимость
Количество этажей
Отапливаемая площадь
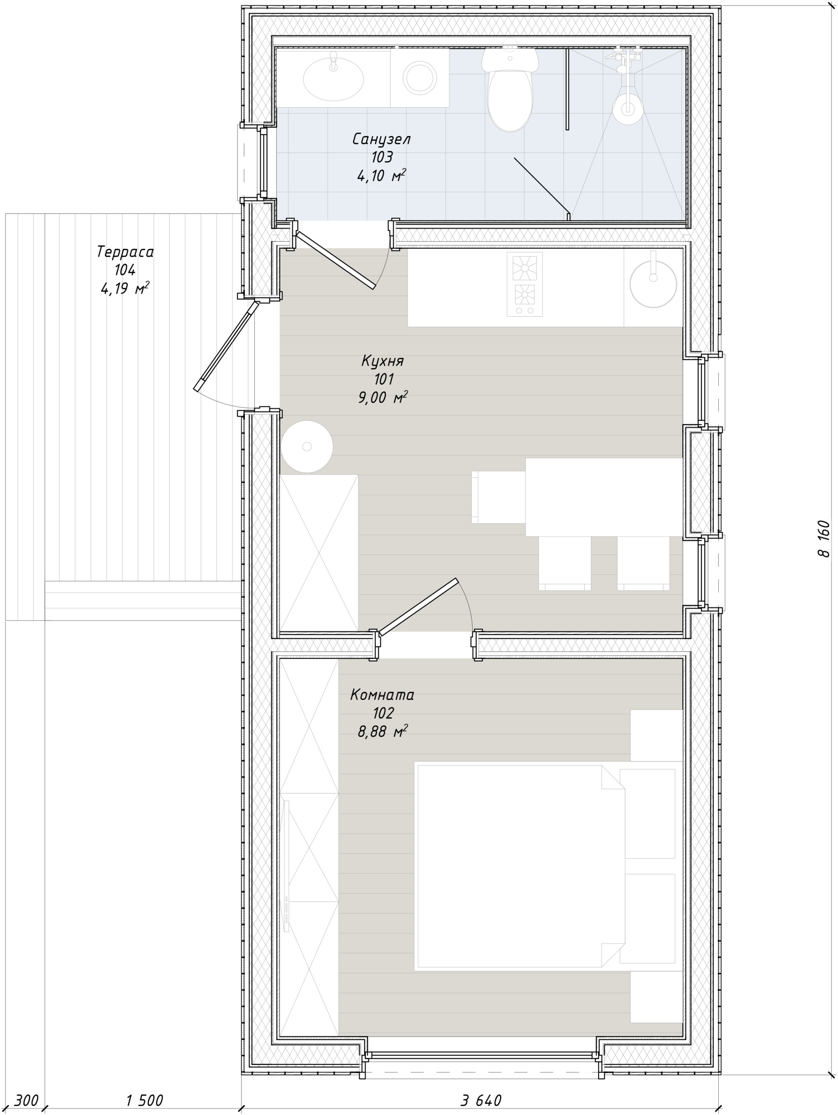
Общая площадь
1
26,17 м²
21,98 м²
1
Количество санузлов
Количество спален
1
8х6
Габариты дома

Этот дом идеален для молодой семьи или пожилых людей, не желающих превращать свою жизнь в долгую стройку, в этом доме можно жить уже «здесь и сейчас» и для этого в нем есть все самое необходимое, большая кухня-гостиная, уютная спальня, просторный санузел, благодаря каркасно - модульной технологии этот дом может меняться и расти вместе с вашей семьей. Вы просто можете добавлять наши модули к существующим, по мере необходимости. Как и во всех наших домах этот дом оснащен панорамным остеклением, что делает его светлым и уютным еще больше. Пожалуй, это идеальный дом для начала новой жизни в новом месте, который в последствии может стать уютным пристанищем ваших гостей, или удачным приобретением для круглогодичной сдачи в аренду.

План и фасады

Нажмите на изображение плана или фасада для увеличения

Характеристики дома

2500 мм
Высота потолка
4,19  м2
Площадь террас, крылец
150 мм
Толщина утеплителя стен
Сухая строганая доска 20х120 мм
Материал отделки фасада
200 мм
Толщина утеплителя кровли
Материал покрытия кровли
Вы можете распечатать план и характеристики проекта в один клик!

Цены и комплектации

Комплектации
Теплый контур

Теплый контур с инженерными сетями

Заезжай и живи
Каркас из сухой антисептированной доски с внешней отделкой из сухой строганой доски с покраской и подготовкой под внутреннюю отделку из фанеры толщиной 10 мм
Кровля наплавляемая с водосточной системой из пластика и воронками
Металлопластиковые окна и двери профиль IVAPER 62 либо аналог с монтажом отливов и откосов, наличников (при необходимости)
Парапетные и цокольные отливы
Гильзы для коммуникаций
Установка дома на фундамент
Отделка цоколя
Прокладка электрических сетей в гофротрубе
Монтаж труб ГВС и ХВС с выводом водорозеток
Монтаж выпусков канализации
Внутренние стены – отделка имитацией бруса с покраской в 2 слоя
Пол в жилых помещениях – хвойная подложка, монтаж инфракрасного теплого пола, ламинат
Потолок натяжной с накладными светильниками
Монтаж пластиковых подоконников
Санузел – облицовка пола и стен керамогранитом, монтаж электрического теплого пола, устройство поддона из керамогранита с душевым трапом
Отдельностоящий унитаз, душевая стойка с лейкой, тумба в сборе с раковиной и смесителем, полотенцесушитель, бойлер 50 литров
2 480 000 рублей
2 880 000 рублей
3 510 000 рублей

2 480 000 рублей

2 880 000 рублей
3 510 000 рублей

С этим домом покупают

Уважаемые клиенты! Скидки на мебель и дополнительные товары к Вашим будущим домам действуют только в случае пакетного предложения комплектации «под ключ»! Существующие скидки предоставлены на прямую производителями в рамках партнерских программ!
Больше товаров
Больше товаров

часто задаваемые вопросы

Оставить заявку
на обратный звонок
Сделайте первый шаг к мечте — напишите нам.

Мы знаем, что вам предложить!