Миккели

Каркасные дома
по запросу
минимальная стоимость
Количество этажей
Отапливаемая площадь
Общая площадь
1
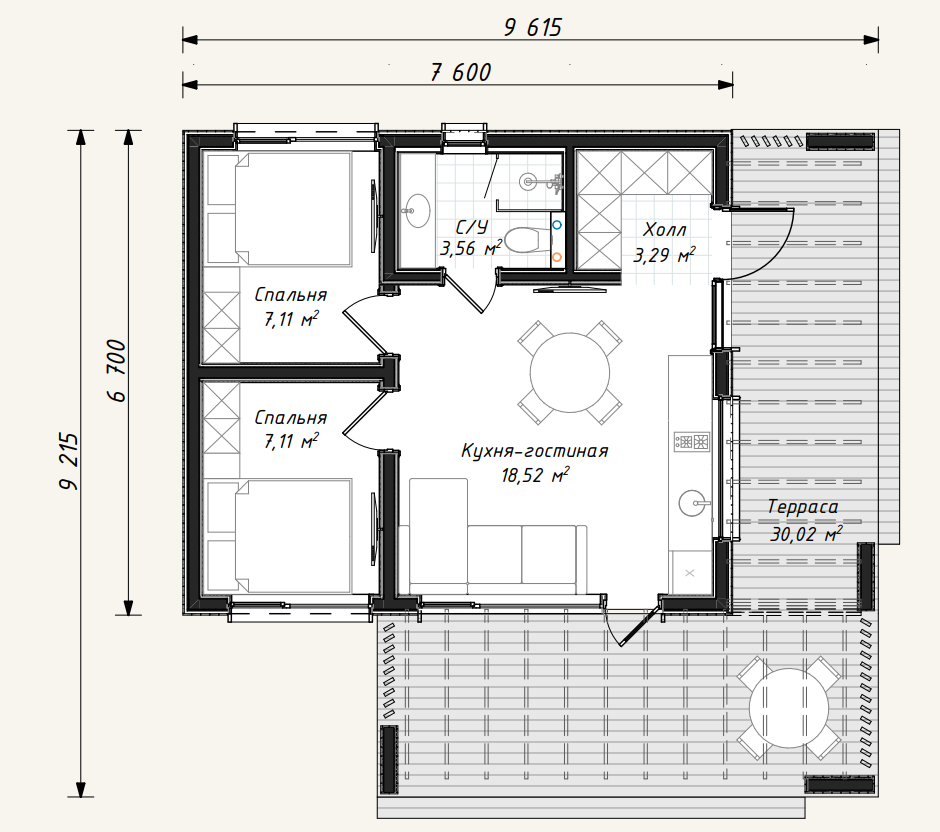
69,61 м²
39,59 м²
1
Количество санузлов
Количество спален
2
9x9
Габариты дома

План и фасады

Нажмите на изображение плана или фасада для увеличения

Характеристики дома

2800 мм
Высота потолка
30,02 м2
Площадь террас, крылец
150 мм
Толщина утеплителя стен
Сухая строганая доска 20х120 мм
Материал отделки фасада
250 мм
Толщина утеплителя кровли
Наплавляемая кровля
Материал покрытия кровли

С этим домом покупают

Уважаемые клиенты! Скидки на мебель и дополнительные товары к Вашим будущим домам действуют только в случае пакетного предложения комплектации «под ключ»! Существующие скидки предоставлены на прямую производителями в рамках партнерских программ!
Больше товаров
Больше товаров

часто задаваемые вопросы

Оставить заявку
на обратный звонок
Сделайте первый шаг к мечте — напишите нам.

Мы знаем, что вам предложить!