Винтерфелл

26 310 000 ₽
Каркасные дома
минимальная стоимость
Количество этажей
Отапливаемая площадь
Общая площадь
2
390,29 м²
233,19 м²
4
Количество санузлов
Количество спален
4
21x11
Габариты дома

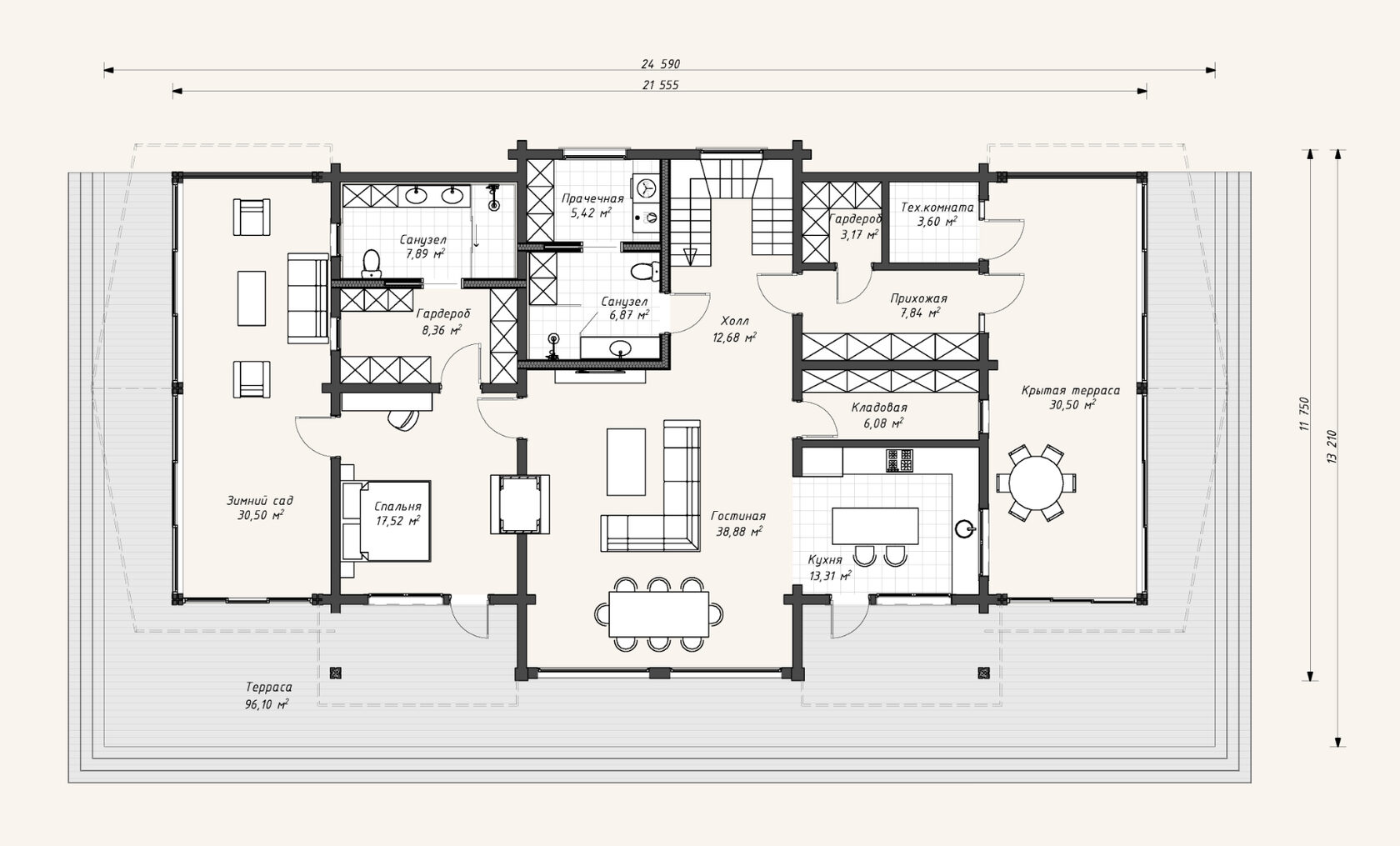
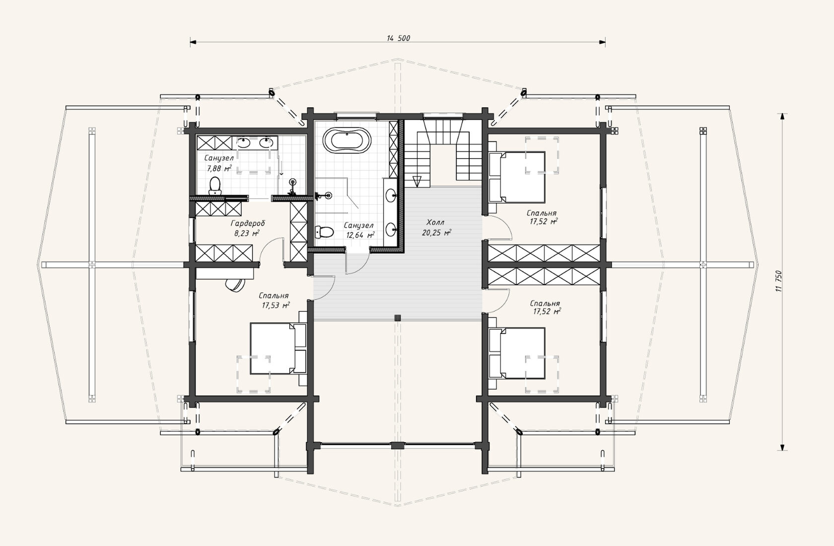
Винтерфелл — родовой замок Старков, и действительно только взгляните на этот проект, он выглядит как замок, потрясающий своим масштабом дом включает в свою центральную часть видовые окна в пол, с двумя флигелями по сторонам, дом словно развернут к свету, он невероятно красивый, стильный, солидный, этот проект один из наших любимых детищ. В доме 4 большие спальни, на первом и втором этаже, три гардеробных, огромная светлая кухня – гостиная. Три больших санузла, прачечная, кладовая, техническое помещение, зимний сад и крытая терраса, два больших холла со вторым светом, этот дом не оставит равнодушным никого, он создан для счастливой жизни большой и дружной семьи, невероятно большая терраса, делает этот дом еще удобнее, комфортнее и функциональнее, Винтерфел - полноценная альтернатива городской квартире со всеми удобствами городской жизни., кстати спорт зал и сауну можно разместить в части зимнего сада, и тогда наверняка ехать в город вам понадобиться еще реже.

План и фасады

Нажмите на изображение плана или фасада для увеличения

Характеристики дома

1 этаж — 2060 мм, 2 этаж — max 4320 мм, min 1600 мм
Высота потолка
96,10 м2
Площадь террас, крылец
Клееный брус 205х280 мм
Материал отделки стен
Брус
Материал отделки фасада
250 мм
Толщина утеплителя кровли
Цементно-песчаная черепица
Материал покрытия кровли
Вы можете распечатать план и характеристики проекта в один клик!

Цены и комплектации

Комплектации
Теплый контур

Теплый контур с инженерными сетями

Заезжай и живи
Каркас из сухой антисептированной доски с внешней отделкой из сухой строганой доски с покраской и подготовкой под внутреннюю отделку из фанеры толщиной 10 мм
Кровля наплавляемая с водосточной системой из пластика и воронками
Металлопластиковые окна и двери профиль IVAPER 62 либо аналог с монтажом отливов и откосов, наличников (при необходимости)
Парапетные и цокольные отливы
Гильзы для коммуникаций
Установка дома на фундамент
Отделка цоколя
Прокладка электрических сетей в гофротрубе
Монтаж труб ГВС и ХВС с выводом водорозеток
Монтаж выпусков канализации
Внутренние стены – отделка имитацией бруса с покраской в 2 слоя
Пол в жилых помещениях – хвойная подложка, монтаж инфракрасного теплого пола, ламинат
Потолок натяжной с накладными светильниками
Монтаж пластиковых подоконников
Санузел – облицовка пола и стен керамогранитом, монтаж электрического теплого пола, устройство поддона из керамогранита с душевым трапом
Отдельностоящий унитаз, душевая стойка с лейкой, тумба в сборе с раковиной и смесителем, полотенцесушитель, бойлер 50 литров
26 310 000 рублей
30 620 000 рублей
37 250 000 рублей

26 310 000 рублей

30 620 000 рублей
37 250 000 рублей

С этим домом покупают

Уважаемые клиенты! Скидки на мебель и дополнительные товары к Вашим будущим домам действуют только в случае пакетного предложения комплектации «под ключ»! Существующие скидки предоставлены на прямую производителями в рамках партнерских программ!
Больше товаров
Больше товаров

часто задаваемые вопросы

Оставить заявку
на обратный звонок
Сделайте первый шаг к мечте — напишите нам.

Мы знаем, что вам предложить!